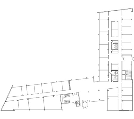
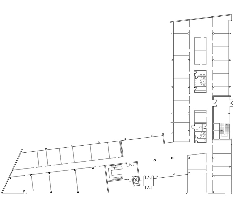
Bürogebäude in Darmstadt
Der L-förmige Baukörper bildet zusammen mit einem bestehenden Wohngebäude eine Art Hof und ist gleichzeitig Auftakt für weitere projektierte Gebäude in einem durchgrünten Büropark.
Zentrale Gestaltungsidee ist eine harte, plastische Schale, die an prägnanten Stellen aufgeschnitten wird und das Innenleben des Baukörpers preisgibt. Den größten Einschnitt bildet der Eingangsbereich. Hier erstrecken sich Glasflächen und Stahlbalkone über fünf Etagen. Öffnungen im Dach sorgen für spannenden Lichteinfall auf den Terrassen im Obergeschoss.
Für die Fassaden zum Hof wurde mit sandfarbenen Keramikplatten ein warmes Material gewählt. Die stärker strukturierten Flächen nähern sich der Nachbarbebauung an. Die schwarzen Fensterbänder und Keramikplatten stehen im Kontrast zur weißen Putzschale.
>>

