Umnutzung eines ehemaligen Fabrikgebäudes
der Schneid- und Wickelindustrie
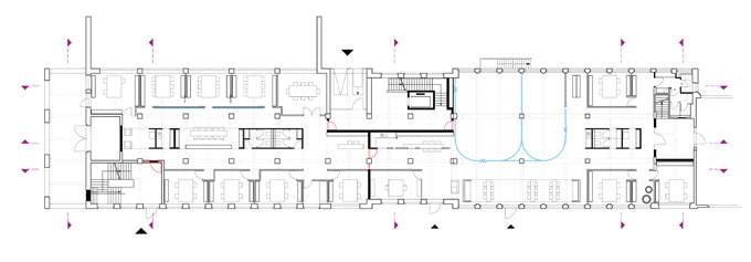
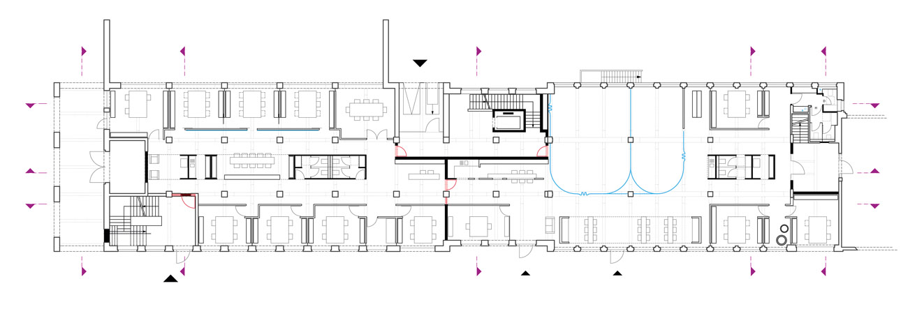
Ein als Lager genutztes dreigeschossiges Fabrikgebäude soll in großzügige Bürolofts umgewandelt werden. Die Untersuchung des Lagers zeigt deutlich die versteckten Potentiale des alten Bauwerks.
Das zwischen 1914 und 1925 in zwei Bauabschnitten errichtete Gebäude gehört zu den ersten, pionierhaften „Eisenbetonbauten“ Darmstadts. Es ermöglichte durch diese damals neue Konstruktion weite, stützenfreie Flächen bei luftiger Raumhöhe. Auch heute noch bietet diese Architektur die ideale Grundlage für zeitgemäßes Arbeiten.
Das im Krieg zerstörte und behelfsmäßig wiederaufgebaute Dachgeschoss wird in der Planung teilweise rückgebaut. Eine Panoramaglasanlage längs der Gebäudefassaden verleiht den Flächen eine besondere räumliche Qualität. Fließende Raumfolgen, die Integration freistehender, rhythmisch gliedernder Einbauten in der Mittelzone sowie die den historischen Industrieverglasungen nachempfundenen Fenster betonen den spannenden Kontrast zwischen Historie und modernem, hochwertigem Innenausbau auf aktuellem technischen Stand.
>>

