Anbau an ein bestehendes Bürogebäude
Ausgangspunkt für das Entwurfskonzept sind die geometrischen Vorgaben eines bestehenden viergeschossigen Bürogebäudes, das von verschiedenen Materialen geprägt ist.
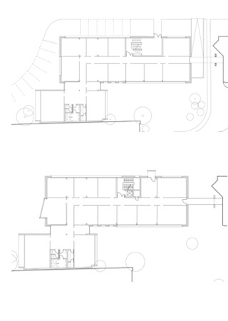
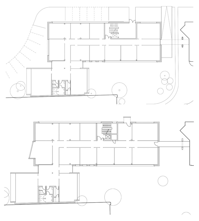
Der Erweiterungsbau gliedert sich in zwei Baukörper:
Der mit einer Vormauerschale aus offenporigen Handformverblendern versehene Mauerwerksbau korrespondiert
mit der Backsteinfassade der gegenüberliegenden Zeppelinhalle. Das Konzept greift die hellen Sandstein-
und Putzelemente der historischen Halle auf. Der weiße Putzbau vermittelt zwischen dem Anbau und der
angrenzenden, mit strukturierten Stahlbeton-Fertigteilen verkleideten Turnhalle.
Das Gebäude bietet auf vier Büroetagen rund 140 Arbeitsplätze. Im Untergeschoss befindet sich eine Tiefgarage. Im zweiten Obergeschoss verbindet eine verglaste Brücke das neue mit dem bestehende Bürogebäude.
Trotz des hohen Kosten- und Termindrucks wurde für den Funktionsbau eine der Umgebung entsprechende zurückhaltende Gestaltung gefunden.
>>


