Büro- und Verwaltungsgebäude in Groß-Gerau
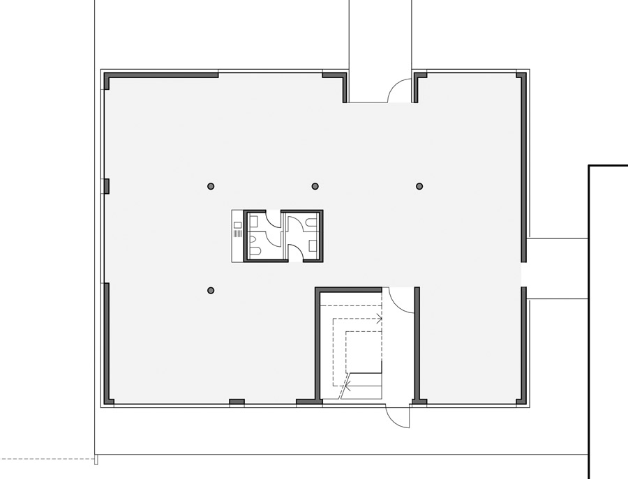
Im Industriegebiet Groß-Gerau entstand ein neues Verwaltungsgebäude für ein internationales Logistikunternehmen. Der optische Solitär fügt sich in die funktionale, rechtwinklige Struktur des industriellen Bestandes ein. Er ist über einen transparenten Durchgang mit der Logistikhalle verbunden.
Der Versand von rund 55000 Sendungen täglich erfordert ausgefeiltes Teamplay: Die Abläufe müssen räumlich und zeitlich perfekt koordiniert sein, denn die Administration arbeitet primär am Tag, während die Abwicklung in der Halle ausschließlich nachts stattfindet.
Holz als Fassadenmaterial ist in Industriegebieten noch äußerst selten anzutreffen. Umso markanter hebt sich der Neubau mit seiner hölzernen Hülle, die zwischen schlanker, körperloser Haut und geschichteter Schwere oszilliert, von seiner Umgebung ab.
Horizontal umlaufende Bänder aus gehobelter sibirischer Lärche gliedern die Geschosse und thematisieren die Idee des Schichtens und Stapelns. Die dahinter liegenden pulverbeschichteten Fensterleibungen, -schwerter und -profile treten dunkel zurück. Sie nehmen kontrastierend die Anmutung eines Palettenstapels auf und betonen die Körperhaftigkeit des Gebäudes.
>>



