Wettbewerbsbeitrag Rathausneubau
und Umfeld Bissendorf
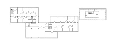
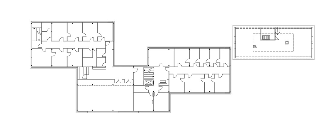
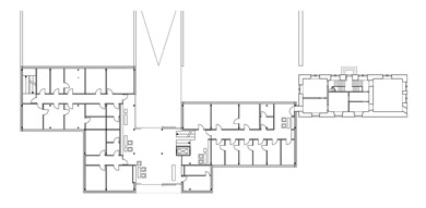
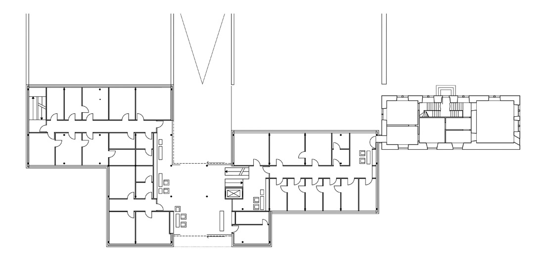
Der Neubau orientiert sich in seiner Größe und Masse am Volumen des Hauses Bissendorf und bezieht dieses als eines von vier Elementen in sein plastisches Spiel ein: Dachneigung, Proportionen und Maßstäbe korrespondieren miteinander. Die Beziehungen zwischen diesen vier Körpern sind unterschiedlich stark ausgeprägt: Sie berühren oder durchdringen sich oder sind durch eine Fuge voneinander getrennt.
Die Höhe und Tiefe des gestaffelten Komplexes lässt einerseits die Betrachtung als Gesamtgebilde zu. Andererseits ermöglicht sie auch die Elemente mit ihren verschiedenen Charakteren einzeln wahrzunehmen. Die in Nuancen differenzierte Farbigkeit thematisiert die Ambivalenz von Individuum und Gemeinschaft.
Der historische Ortskern Bissendorf verfügt über herausragende stadträumliche und stadt-gestalterische Qualitäten. Neben dem Haus Bissendorf wirkt insbesondere die katholische Kirche St. Dionysius als markante städtebauliche Dominante weit über den Kirchplatz hinaus. Ihre Lage auf einer Anhöhe sowie ihre domähnliche Anmutung schaffen die wesentlichen Voraussetzungen für die Gestaltung einer klassischen Stadtsilhouette.
>>

