Erweiterung der Kindertagesstätte Bayerseich in Egelsbach
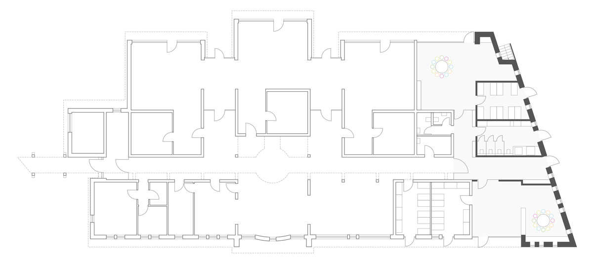
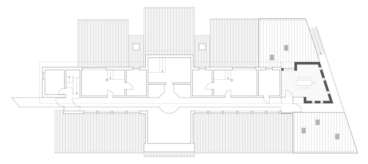
Die bestehende Kindertagesstätte in Bayerseich, Egelsbach wurde baulich um zwei Gruppenräume für Kinder im Alter von unter drei Jahren, sowie einen Personalraum im Obergeschoss erweitert.
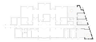
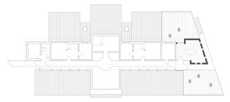
Das markante Bestandsgebäude mit seiner vielfältig gestaffelten Dachlandschaft entwickelt sich linear entlang des großen Spielflures, von dem aus die Gruppenräume einerseits, sowie die Personal- und Nebenräume andererseits erreichbar sind. Die Erweiterung schmiegt sich als Ergänzung des bestehenden Gebäudevolumens an dessen nördliches Ende an, ihre Ausdehnung nach Norden orientiert sich dort an der schräg verlaufenden Grundstücksgrenze.
Die Gesamtfigur des in sich schlüssig gestalteten Bestandes wollte so wenig wie möglich durch neue und eigenwillige Geometrien gestört, oder gar gebrochen werden. Hierfür wurden die chrakteristischen Höhen, Dachneigungen, sowie das großflächig im Bestand verwendete Material Stehfalzblech in die Gestaltung des Neubaus überführt und mittels vielfältiger Volumenstudien in eine konkrete Planung umgesetzt.
Die Erweiterung schließt sich, die Proportionen und Schnittypologie des Bestandes aufgreifend, respektvoll an, zeigt sich jedoch ebenso ehrlich als Kind seiner Zeit. Auf regelrechte Dachüberstände und eine Differenzierung zwischen Wand- und Dachmaterial wurde vollständig verzichtet, die weiß beschichtete Fassade aus Aluminiumstehfalz legt sich homogen um den gesamten Neubau und wird mit spielerisch angeordneten Lochfenstern versehen.
>>






