Kindertagesstätte mit sechs Gruppen und
einem Familienzentrum
Schneller! Propeller!
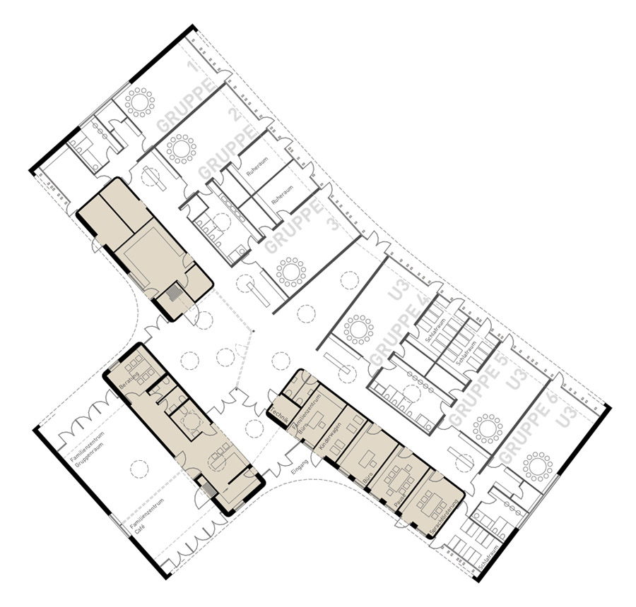
Der Grundriss wurde mit der Anmutung eines dreiflügeligen Propellers entwickelt. Die zwei langen Flügel nehmen die Kita auf, der dritte, quer liegende, das Familienzentrum. Den unterschiedlichen Funktionsbereichen sind als räumliche Erweiterung jeweils eigene, großzügig begrünte Außenbereiche zugeordnet.
Wesentliches Gestaltungselement ist das auskragende Dach, dessen weiß verputzte Ränder an den Stirnseiten der Flügel homogen in die Wandflächen übergehen. Die Glasfassaden gleichen einer hierzu eingerückten Membran. Es entsteht ein fließender Übergang von innen nach außen.
Dienende Flächen wie Büros, Sanitärbereiche, Küche und Abstellbereiche etc. wurden in drei massiv gestalteten, vom Dachrand ebenfalls zurückgesetzten Körpern zusammengefasst. Die im Übrigen fließend, transparent und hell gestalteten Spielflächen gruppieren sich um eine offene Mitte, die flexibel als Mehrzweckraum abgetrennt und genutzt werden kann.
>>
