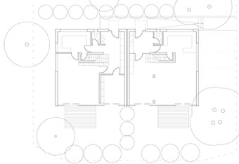
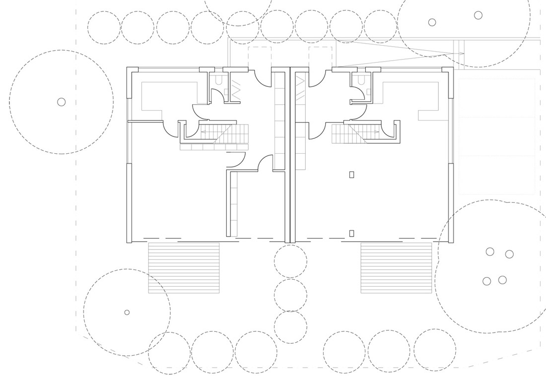
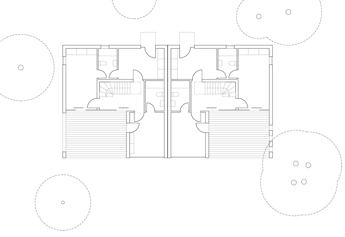
Doppelhaus in Darmstadt-Eberstadt
In einer Wohnsiedlung der 60er Jahre, die durch große Parzellen und Flachdach-Solitäre geprägt ist, wurde ein Doppelhaus auf einem Grundstück mit Hanglage verwirklicht. Das besondere daran: Die Planung berücksichtigte, dass das benachbarte Einfamilienhaus später abgerissen und dann der Neubau in zwei Abschnitten erweitert werden kann.
Ein dreiseitiger massiver „Mantel“ schottet das Gebäude zur Straße und zur benachbarten Bebauung ab. Wenige, durch Sichtbetongewände hervorgehobene Fenster beleben die Flächen. Die talseitige Südwestfassade ist komplett verglast und lässt viel Licht in den Innenraum fluten.
Das Baurecht ließ nur ein Vollgeschoss zu. Deshalb wurde ein Staffelgeschoss mit Dachterrasse geplant. So konnte die gewünschte Wohnfläche realisiert werden und es entstand zusätzlich zum Garten ein weiterer privater Außenbereich.
„(...) Ein Haus, das in Planung und Umsetzung klug auf die Anforderungen der Umgebung und der Bewohner reagiert.“
FSB Architekturführer Darmstadt-Starkenburg 2004>>


