Aufstockung und Nachverdichtung Frankfurt
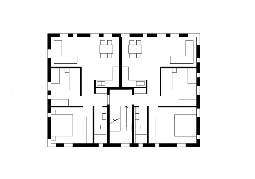
Auf einem Grundstück in Frankfurt Bockenheim wurden Strategien entwickelt zur Aufstockung des fünfgeschossigen 50er-Jahre-Wohngebäudes sowie zur Nachverdichtung des großzügigen Innenhofes mit einer Kindertagesstätte.
Neben den komplexen technischen und bauplanungsrechtlichen Randbedingungen, die aus den Abstandsflächen und der erforderlichen Tiefgarage resultieren, bestand in den gestalterischen Aspekten eine große Herausforderung.
Der Dachaufbau wurde als Maisonette-Typ entwickelt, der in ruhiger Kubatur und spielerischer Anordnung der Öffnungen deutlich mit der rigiden Öffnungsstruktur des Bestandsgebäudes kontrastiert.
Die Kindertagesstätte wiederum spielt auf der Basis eines geometrisch klar geschnittenen Baukörpers mit dem Thema der innerstädtischen Gestaltung von differenzierten Außenbereichen: auf Dachterrasse und Dachgarten einerseits und in der vielfältig genutzten Erdgeschosszone andererseits.
>>

