Entwurf für ein Wohngebäude in Darmstadt
Für ein mit Bürogebäuden gesäumtes Grundstück wurde die Realisierbarkeit eines Wohngebäudes mit Tiefgarage in zweiter Reihe geprüft. Ziel des Projektes war es, eine Antwort auf die hohe Nachfrage nach kleineren Wohneinheiten (2- bis 3-Zimmer-Wohnungen) in Innenstadtnähe mit guter Anbindung an den öffentlichen Nahverkehr zu finden.
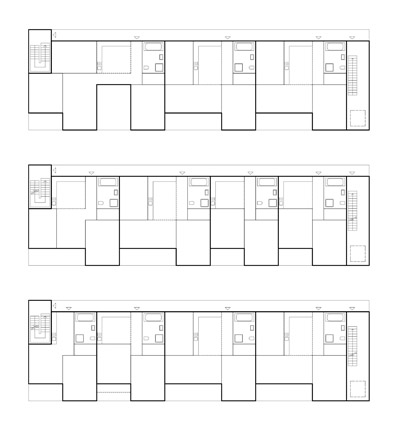
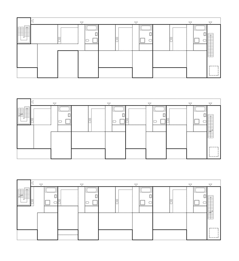
Die Wohneinheiten werden über einen gemeinsamen Laubengang erschlossen. Zu jeder Wohnung gehört eine private, nach Südwesten ausgerichtete Loggia, auf der die Abendsonne genossen werden kann. Die Wohnungen im Erdgeschoss besitzen einen eigenen Garten, der rückwärtige Gemeinschaftsgarten steht allen Bewohnern offen.
Große und kleinere Wohnungen sind geschossweise versetzt. So schaffen sie mit ihren unterschiedlich großen Loggien abwechslungsreiche Fassadenöffnungen. Die fein ornamentierten Balkongeländer, Fensterprofile und unterschiedlich strukturierten Putzoberflächen in Beige- Creme- und Goldtönen setzen einen spannungsreichen Kontrast zum körperhaften, klaren Riegel.
>>

