Einfamilienhaus in Seeheim
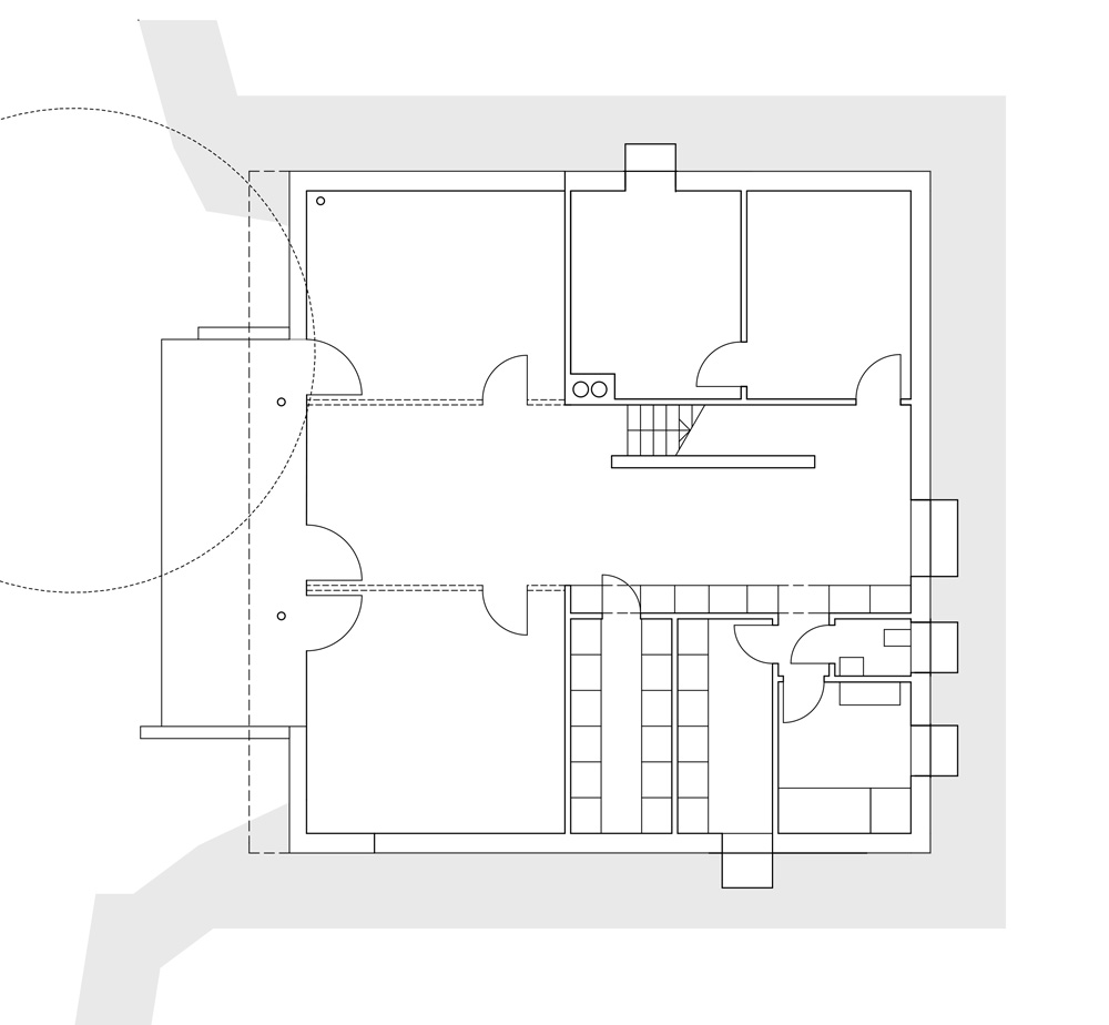
Das Grundstück befindet sich in exponierter Lage mit Fernblick in die Rheinebene, in einem stark durchgrünten, um 1900 entwickelten Wohngebiet. Der monolithische Baukörper orientiert sich an der im Bebauungsplan vorgegebenen archetypischen Form des Giebelhauses und schiebt sich balancierend über die Hangkante hinaus.
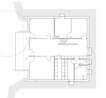
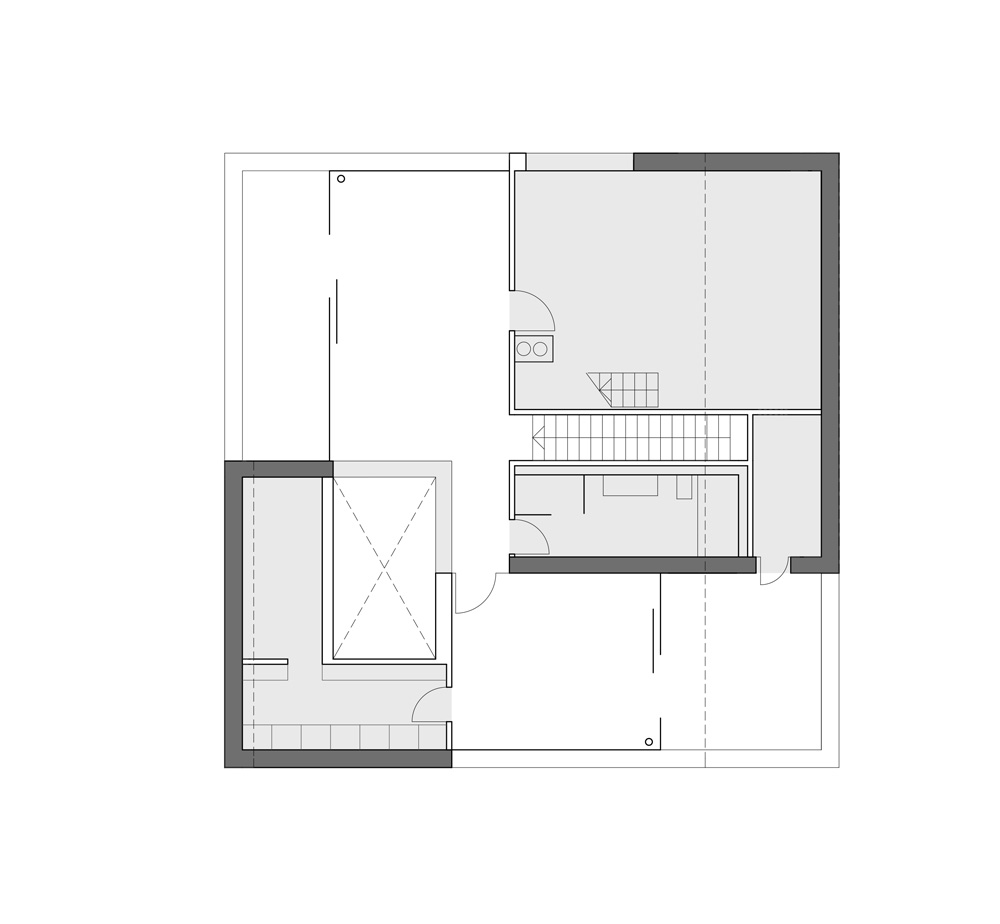
Vier großformatige Einschnitte über Eck inszenieren unterschiedliche Ausblicke. Die durchlaufenden Schnittflächen strukturieren die Grundrisse und bilden einen fließenden Übergang von innen nach außen. Die Planung berücksichtigt eine spätere Anpassung der Grundrisse für ein Mehrgenerationenhaus. So lässt sich beispielsweise das gesondert erschlossene Gartengeschoss als eigenständige Wohnung nutzen.
Das Haus fügt sich durch die diskret zurücktretende, anthrazitfarbene Kupferdeckung des Daches und der Fassade ins Umfeld und Grün der Ortsrandlage ein.
„(...) Die Jury zeigte sich von den offensichtlichen Fähigkeiten beeindruckt, mit dem die vorpatinierten Kupfer-Schindeln verwendet wurden, um die äußere Hülle zu verkleiden und einen elegant-fließenden Panzer zu schaffen. (...)“
The Architectural Review 11/2011

>>




